Application of Inverter,Converter - UPS, Motor control
บทนำ
Inverter เป็นอุปกรณ์ทางไฟฟ้า ที่ใช้สำหรับเปลี่ยนไฟฟ้ากระแสตรง เป็นไฟฟ้ากระแสสลับ โดย ไฟฟ้ากระแสตรงที่จะ นำมาทำการเปลี่ยนนั้นมาจาก แบตเตอรี่ เตรื่องกำเนิด ไฟฟ้ากระแสตรง หรือแผงโซล่าเซลล์ก็ได้ ไฟฟ้ากระแสสลับที่ได้มานั้น จะเหมือนกับไฟฟ้าที่ได้จากปลั๊กไฟ ตามผนังบ้านทุกอย่าง โดย inverter ทำให้อุปกรณ์ ต่างๆ เช่น มอเตอร์, พัดลม หรืออุปกรณ์ต่างๆที่ใช้ไฟฟ้ากระแสสลับ สามารถใช้ได้กับไฟฟ้ากระแสตรงConverter เป็นอุปกรณ์ทางไฟฟ้า ที่ใช้สำหรับเปลี่ยนไฟฟ้ากระแสสลับ เป็นไฟฟ้ากระแสตรง โดยไฟฟ้ากระแสสลับที่จะ นำมาทำการเปลี่ยนนั้น มาจากแหล่งกำเนิด ไฟฟ้ากระแสสลับทั่วไป
UPS ( Uninterruptible Power Supply )
เนื่องจากใน ปัจจุบัน กระแสไฟฟ้าที่ใช้อยู่ไม่มีความแน่นอน และในอุปกรณ์ ที่ใช้ในธุรกิจที่สำคัญๆ จึงต้องการการป้องกันจาก ความผิดปกติของ กระแสไฟฟ้า ซึ่งทำให้เกิดความเสียหาย ต่องานนั้นๆได้UPS ( Uninterruptible Power Supply ) จึงเป็นอุปกรณ์ที่ออกแบบมาเพื่อ แก้ปัญหาเหล่านี้อย่าง เช่น ไฟเกิน, ไฟตก, ไฟดับ, คลื่นรบกวน ฮลฮ โดยจะทำงานร่วมกับ แบตเตอรี่ที่จะจ่ายกระแสไฟฟ้าสำรองทันที ทีไฟฟ้าเกิดดับ ซึ่งแบตเตอรี่นี้จะจ่ายไฟฟ้า ที่เพียงพอที่จะทำให้มีเวลา ในการรักษาข้อมูล และรักษาระบบ โดยมีหลักการทำงานดังรูป
จากรูป กระแสไฟฟ้า 220 V AC จะ จ่ายเข้าไปยังส่วน rectify และ transformer ในส่วนนี้จะทำการ เปลี่ยนแปลงจาก ไฟฟ้ากระแสสลับเป็นกระแสตรง แล้วลดระดับแรงดันไฟฟ้ามาให้เท่ากับแรงดันของแบตเตอรี่ โดยจะมี multiplexer ซึ่ง ที่สภาวะปกติ mux ตัวนี้ จะสวิทช์ให้ไฟจาก rectify ผ่านออก ไปยัง อินเวอร์เตอร์ แต่ถ้ากระแสไฟฟ้าดับ mux จะทำ การสวิทช์มาใช้ไฟจากแบตเตอรี่โดยทันที ต่อจากนั้นไฟฟ้ากระแสตรงจะเข้าสู่อินเวอร์เตอร์โดยอินเวอร์เตอร์ก็จะเปลี่ยน ไฟกระแสตรงนั้นให้เป็นไฟกระแสสลับซึ่งปรับความถี่ได้โดยไฟกระแสสลับที่ออกมา จากอินเวอร์เตอร์ก็จะป้อนสู่เครื่อง ไฟฟ้าทั่วไปโดยที่ไฟกระแสสลับที่ได้ออกมาจะถูกนำไปป้อนกลับมาทำการเปรียบ เทียบกับความถี่อ้างอิงค่าหนึ่งแล้วนำ ผลจากการเปรียบเทียบไปควบคุมการกำเนิดความถี่ของอินเวอร์เตอร์เพื่อให้ได้ ไฟฟ้ากระแสสลับที่มีความถี่คงที่และถูกต้อง ตามที่เครื่องใช้ไฟฟ้ากระแสสลับต้องการ
Motor Control
มอเตอร์เป็น อุปกรณ์ไฟฟ้า ที่ใช้ในการแปลงพลังงานไฟฟ้า ไปเป็นพลังงานกล โดยนำพลังงานที่ได้นี้ไปทำ การขับเคลื่อนเครื่องจักร อื่นๆต่อไป ความเร็วของมอเตอร์ สามารถกำหนดได้โดย1. แรงบิดของโหลด
2. จำนวนขั้วของมอเตอร์
3. ความถี่ของแหล่งจ่ายไฟที่ใช้กับมอเตอร์
4. แรงดันที่จ่ายให้กับมอเตอร์
ความเร็วของมอเตอร์สามารถหาได้จากสูตร ดังต่อไปนี้
ความเร็วรอบ N = {[120 * ความถี่ f (Hz)] / จำนวน ขั้ว P} * (1-S)
โดยเทอม 1-S กำหนดโดยโหลด
จากสูตรข้างต้นจะพบว่า ถ้าความถี่ของแหล่งจ่ายไฟ เปลี่ยนแปลงไปก็มีผลทำให้มอเตอร์ มีความเร็วเปลี่ยนแปลงได้ด้วย แต่เมื่อทำการเปลี่ยนความถี่ โดยให้แรงดันคงที่ จะมีผลทำให้เกิดฟลักส์ แม่เหล็กเพิ่มมากขึ้นจนอิ่มตัว ซึ่งอาจทำให้มอเตอร์ ร้อนจนเกิดความเสียหายได้ ดังนั้นจึงต้องทำการเปลี่ยน แรงดันควบคู่ไปกับความถี่ด้วย และการที่จะเปลี่ยนแปลง ความถี่ของแหล่งจ่ายไฟ สามารถทำได้โดย การใช้อินเวอร์เตอร์ ซึ่งมีหลักในการทำงานดังรูป
จากรูปข้างต้น แหล่งจ่ายไฟกระแสสลับ จ่ายไฟฟ้ากระแสสลับ ไปยังคอนเวอร์เตอร์ ซึ่งทำหน้าที่เปลี่ยนไฟฟ้า กระแสสลับให้เป็น ไฟฟ้ากระแสตรง แล้วนำไฟฟ้ากระแสตรง ที่ได้ต่อเป็นอินพุตเข้าไป ในวงจรอินเวอร์เตอร์ ซึ่งทำหน้าที่เปลี่ยนไฟฟ้ากระแส ตรงนี้เป็นไฟฟ้ากระแสสลับที่ สามารถเลือกความถี่ได้ เพื่อไปควบคุมมอเตอร์ ให้มีความเร็วตามต้องการได้
หลักการทำงานของส่วนอินเวอร์เตอร์ และคอนเวอร์เตอร์ มีรายละเอียดดังนี้
ส่วนอินเวอร์เตอร์
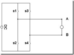
อินเวอร์เตอร์จะเปลี่ยนไฟฟ้า กระแสตรงเป็นกระแสสลับ โดยจะนำไฟฟ้ากระแสตรงต่อ เข้ากับสวิตช์ 4 ตัว และทำการเปิด-ปิด สวิตช์ทั้ง 4 เป็นจังหวะทำให้ เกิดไฟฟ้ากระแสสลับ ดังรูป
จากรูป
- เมื่อปิดสวิตช์ S1 และ S4 ทำให้เกิดกระแสไหลในทิศทางจากจุด A ไปยังจุด B
- เมื่อปิดสวิตช์ S2 และ S3 ทำให้เกิดกระแสไหลในทิศทางจากจุด B ไปยังจุด A
ดังนั้นถ้าเปิด-ปิด สวิตช์ S1 และ S4 สลับกับสวิตช์ S2 และ S3 จะทำให้เกิดไฟฟ้ากระแสสลับขึ้นนั่นเอง โดยถ้ามีการควบคุมเวลา ในการเปิด-ปิดสวิตช์ ที่ต่างกัน ก็จะได้ไฟฟ้ากระแสสลับที่มีความถี่แตกต่างกันไป
ในความ เป็นจริงแล้ว อินเวอร์เตอร์จะใช้ทรานซิสเตอร์แทนสวิตช์ เนื่องจากทรานซิสเตอร์สามารถ เปิด-ปิดได้ในความถี่ที่สูงกว่าสวิตช์ ดังรูป
การ เปลี่ยนขนาดแรงดัน ของอินเวอร์เตอร์ตามความถี่ โดยวิธีการแปรรูปคลื่นของแรงดัน สามารถทำได้หลายวิธีดังนี้
1. วิธีแปรขนาดแรงดันของไฟตรง (PAM : Pulae Amplitute Modulation)
2. วิธีแปรความกว้างของพัลส์ที่ใช้เปิด-ปิดทรานซิสเตอร์ (PWM : Pulae Width Modulation)
- เป็น Square Wave
- เป็น Sine Wave
โดยแต่ละวิธีจะทำให้เกิดผลต่อมอเตอร์ดังตาราง
วิธี PWM แบบ Sine Wave นั้นจะมีการเปิด-ปิดทรานซิสเตอร์หลายๆ ครั้งในหนึ่งไซเคิล และการเปิด-ปิดในแต่ละครั้งจะ ใช้เวลาไม่เท่ากัน จำนวนการเปิด-ปิดใน 1 วินาที เรียกว่าความถี่แคเรียร์ (Carrier Frequency) ซึ่งวิธี PWM แบบ Sine Wave มีรูปแบบควบคุมการ เปิด-ปิดสวิตช์ 3 แบบ ดังตาราง
ส่วนคอนเวอร์เตอร์
คอนเวอร์เตอร์จะ เปลี่ยนไฟฟ้ากระแสสลับให้เป็นไฟฟ้ากระแสตรง ประกอบไปด้วย
1. ส่วนของคอนเวอร์เตอร์ ทำหน้าที่แปลงไฟฟ้าจากกระแสสลับเป็นไฟฟ้ากระแสตรง โดยกลุ่มของไดโอด
2. ส่วนของคอนเดนเซอร์ ทำหน้าที่กรองกระแส(ลด ripple) โดยใช้ ตัวเก็บประจุ
3. วงจรจำกัดกระแสอินรัช(IN RUSH CURRENT SUPPRESSION) ทำหน้าที่จำกัดกระแส ขณะที่มีการเปิดสวิตช์ของอินเวอร์เตอร์เป็นครั้งแรก
ดังรูป
การควบคุมมอเตอร์
1. การสตาร์ท ทำได้โดยให้สัญญาณตั้งความถี่แก่อินเวอร์เตอร์ด้วยความถี่สตาร์ท มอเตอร์ก็จะผลิตแรงบิด จากนั้นอินเวอร์เตอร์จะค่อย ๆ เพิ่มความถี่ขึ้นไป จนกระทั่งแรงบิดของมอเตอร์สูงกว่าแรงบิด ของ โหลด มอเตอร์จึงเริ่มหมุน
2. การเร่งความเร็วและการเดินเครื่องด้วยความเร็วคงที่ หลังจากสตาร์ทอินเวอร์เตอร์และมอเตอร์แล้ว ความถี่ขา ออกจะค่อยๆ เพิ่มขึ้น จนถึงความถี่ที่ต้องการ ช่วงเวลาในการเพิ่มความถี่นี้คือเวลาการเร่งความเร็ว และเมื่อความ ถี่ขาออกเท่ากับความถี่ที่ต้องการ การเร่งความเร็วก็จบ อินเวอร์เตอร์จะเข้าสู่การทำงานในช่วงเวลาการเดินเครื่อง ด้วยความเร็วคงที่
3. การลดความเร็ว ทำได้โดยตั้งความถี่ให้ต่ำกว่าความถี่ขาออก อินเวอร์เตอร์จะลดความถี่ลงมาเรื่อย ๆ ตามช่วง เวลาการลดความเร็วที่ได้ตั้งไว้ ในขณะลดความถี่ ความเร็วรอบของมอเตอร์จะมีค่ามากกว่าความถี่ขาออกของอินเวอร์เตอร์ มอเตอร์จะทำงาน เหมือนเครื่องกำเนิดไฟฟ้า ผลิตไฟจ่ายกลับไปให้อินเวอร์เตอร์ (regeneration) ทำให้แรงดันไฟตรง (แรงดัน คร่อม คอนเดนเซอร์) มีค่าเพิ่มขึ้น ดังนั้นภายในอินเวอร์เตอร์จะมีวงจรที่ทำหน้าที่รับพลังงานที่เกิดจากการ regeneration ซึ่งจะมีผลทำให้เกิดการเบรคมอเตอร์ วงจรนี้เรียกว่า วงจรเบรคคืนพลังงาน ดังรูป
พลังงานที่เกิดจากการ regeneration จะ ป้อนกลับมาชาร์จประจุที่คอนเดนเซอร์ C ทำให้แรงดัน E มีค่าสูง ขึ้น ถ้าแรงดันสูงกว่าค่าที่กำหนด ทรานซิสเตอร์ T ในวงจรเบรคจะ ทำงาน ทำให้มีกระแส I ไหล ผ่านตัวต้านทานเบรค R ทำให้ตัวต้านทานร้อน เป็นการเผาผลาญพลังงานที่เกิดจากการ regeneration และพลังงานที่เก็บสะสมใน คอนเดนเซอร์ C ก็จะถูกคายออกมาด้วย ทำให้แรงดัน E มีค่าลดลง เมื่อลดลงต่ำกว่าค่าที่กำหนด ทรานซิสเตอร์ T จะหยุด ทำงาน กระแสะเบรคก็จะหยุดไหล
ในช่วงการลดความเร็วจะทำงานในลักษณะนี้หลาย ๆ ครั้ง ถ้าพลังงานมีค่าน้อย (แรงบิดที่จำเป็น สำหรับการลด ความเร็วมีขนาดเล็ก) อัตราการใช้งานวงจรเบรคก็จะต่ำ บางครั้งอาจจะไม่ทำงานเลยก็มี
อัตราการใช้งานวงจรเบรคนี้ ได้รับการออกแบบโดยการพิจารณาในแง่ของการระบายความร้อนไว้ที่ 2-3 % เท่านั้น ถ้ามีการใช้เบรคบ่อย หรือใช้เบรคนานเกินไป จะทำให้เกิดปัญหาการระบายความร้อนของตัวต้านทาน และอาจ ทำให้ทรานซิสเตอร์เสื่อมได้
4. การหยุด อินเวอร์เตอร์จะลดความถี่ลงจนถึงระดับหนึ่ง และจะผลิตไฟตรงเข้าไปในมอเตอร์เพื่อทำงานเป็นเบรค จนมอเตอร์หยุด เรียกว่า การเบรคด้วยไฟตรง
แนวคิดในการเลือกขนาดอินเวอร์เตอร์ ถ้าคิดว่าอินเวอร์เตอร์ เหมือนกับแหล่งจ่ายไฟที่ใช้จ่ายพลังงานเพื่อขับมอเตอร์ ก็จะคิกว่ายิ่งเลือกอินเวอร์เตอร์ ขนาดยิ่งใหญ่เท่าใดก็ยิ่งดี สามารถติดตั้งสวิทช์ ที่เอาท์พุตของอินเวอร์เตอร์ เพื่อเปิดปิดจ่ายกระแส ให้มอเตอร์ได้ทันที เหมือนกับแหล่งจ่ายไฟ แต่แนวความคิดนี้ ไม่ถูกต้องเนื่องจาก ต้องสิ้นเปลืองค่าใช้จ่ายสูง และอินเวอร์เตอร์มีขนาดใหญ่ เกินความจำเป็น
ในการเลือกขนาดอินเวอร์เตอร์ ให้เหมาะสมกับมอเตอร์ จะต้องคำนึงถึงข้อต่างๆ ต่อไปนี้
1. ความสามารถใน การขับมอเตอร์ขณะเร่งความเร็ว และความเร็วรอบคงที่ ต้องพิจารณาว่า อินเวอร์เตอร์สามารถจ่ายกระแส ที่มอเตอร์ต้องการได้หรือไม่
2. ความสามารถในการขับมอเตอร์ขณะลดความเร็ว ในขณะที่ลดความเร็วมอเตอร์จะทำงานเป็นเครื่องกำเนิดไฟฟ้าและคืนพลังงาน กลับไปให้อินเวอร์เตอร์ ดังนั้น อินเวอร์เตอร์ต้องมีความสามารถในการรับคืนและใช้พลังงานนี้ให้หมดไป
3. การเลือกขนาดอินเวอร์เตอร์ โดยดูจากขนาดและจำนวนมอเตอร์นั้น ให้เลือกอินเวอร์เตอร์ที่มีกระแส พิกัดมากกว่าผลรวมของกระแสมอเตอร์ทุกตัว
จุดเด่นของอินเวอร์เตอร์อีกอย่างหนึ่งคือสามารถขับ มอเตอร์หลาย ๆ ตัวด้วยอินเวอร์เตอร์เพียงตัวเดียว แต่วิธีการ เดินเครื่องบางแบบอาจต้องเลือกขนาดอินเวอร์เตอร์ที่มีขนาดใหญ่มาก จึงไม่เป็นการประหยัดและเกิดการผิดพลาด ในการเลือกขนาดได้ง่ายด้วย อินเวอร์เตอร์ที่ทำงานในโหมดการควบคุมฟลักซ์เวก เตอร์ ไม่สามารถขับมอเตอร์ ได้หลายตัวพร้อมกันจะต้องเปลี่ยนโหมดการควบคุมไปเป็นแบบแรงดันต่อความถี่ เท่านั้นจึงจะขับมอเตอร์ได้หลายตัว

